News
Liste
Galerie
Kontakt
Geschäftsleitung
Team
Offene Stellen
Publikationen
Preise & Auszeichnungen
Jury
Impressum & Datenschutz
Châtel-St-Denis
2025
5. Rang
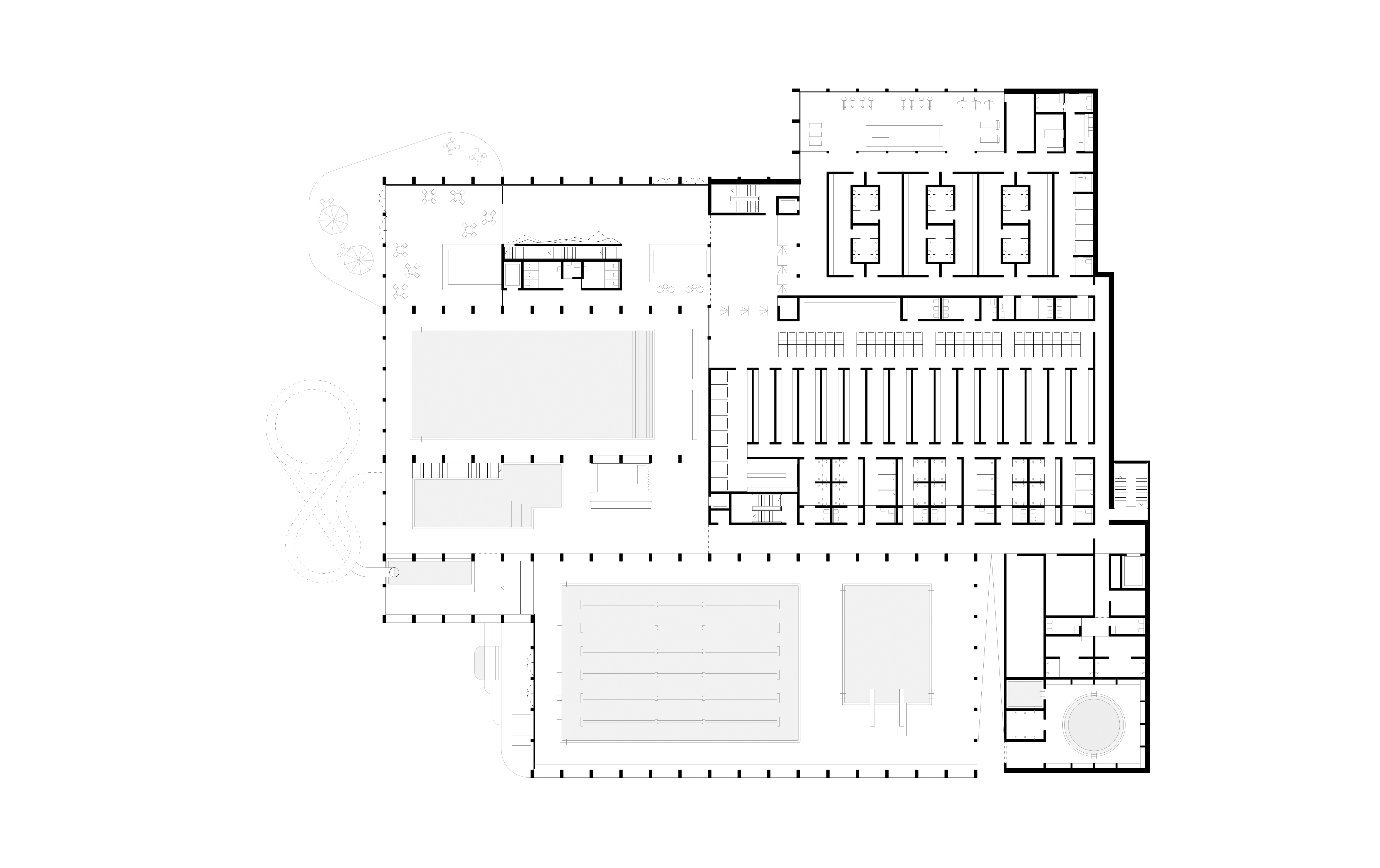
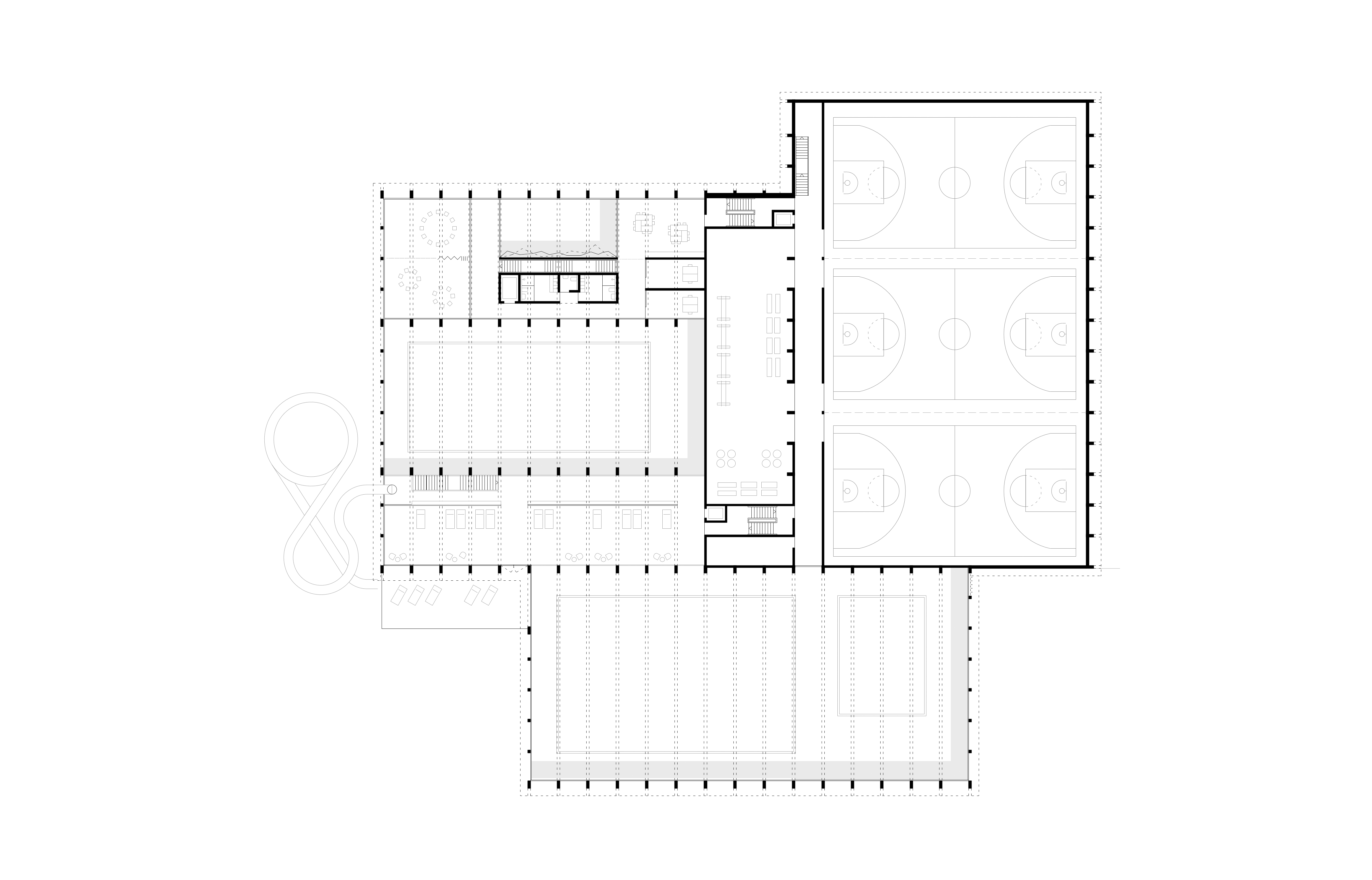
Dreifeldsporthalle und Schwimmzentrum
Association des communes pour le cycle d’orientation de la Veveyse (ASSCOV)
Translocal Architecture GmbH