Zum Inhaltsbereich springen

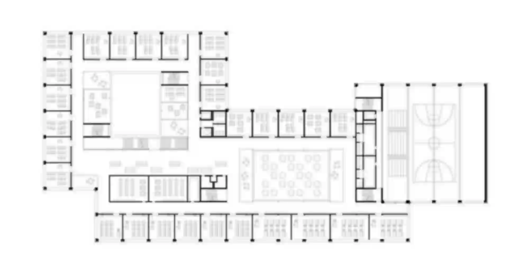
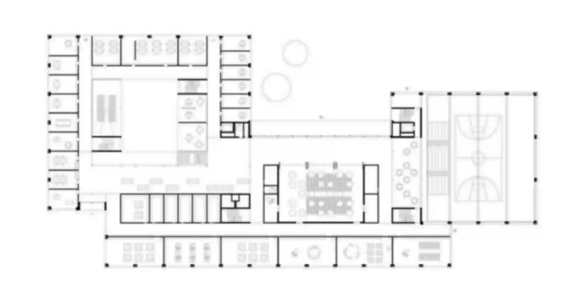
Oberstufenschulhaus

Ort

Vernier

Jahr

2019

Stand

Wettbewerb, 4. Preis

Projekt

Oberstufenschulhaus mit 2 Sporthallen

Auslober

État de Genève

Verfasser

Translocal Architecture GmbH

Nächstes Projekt: Neubau Berner Fachhochschule, Bern | CH