Zum Inhaltsbereich springen

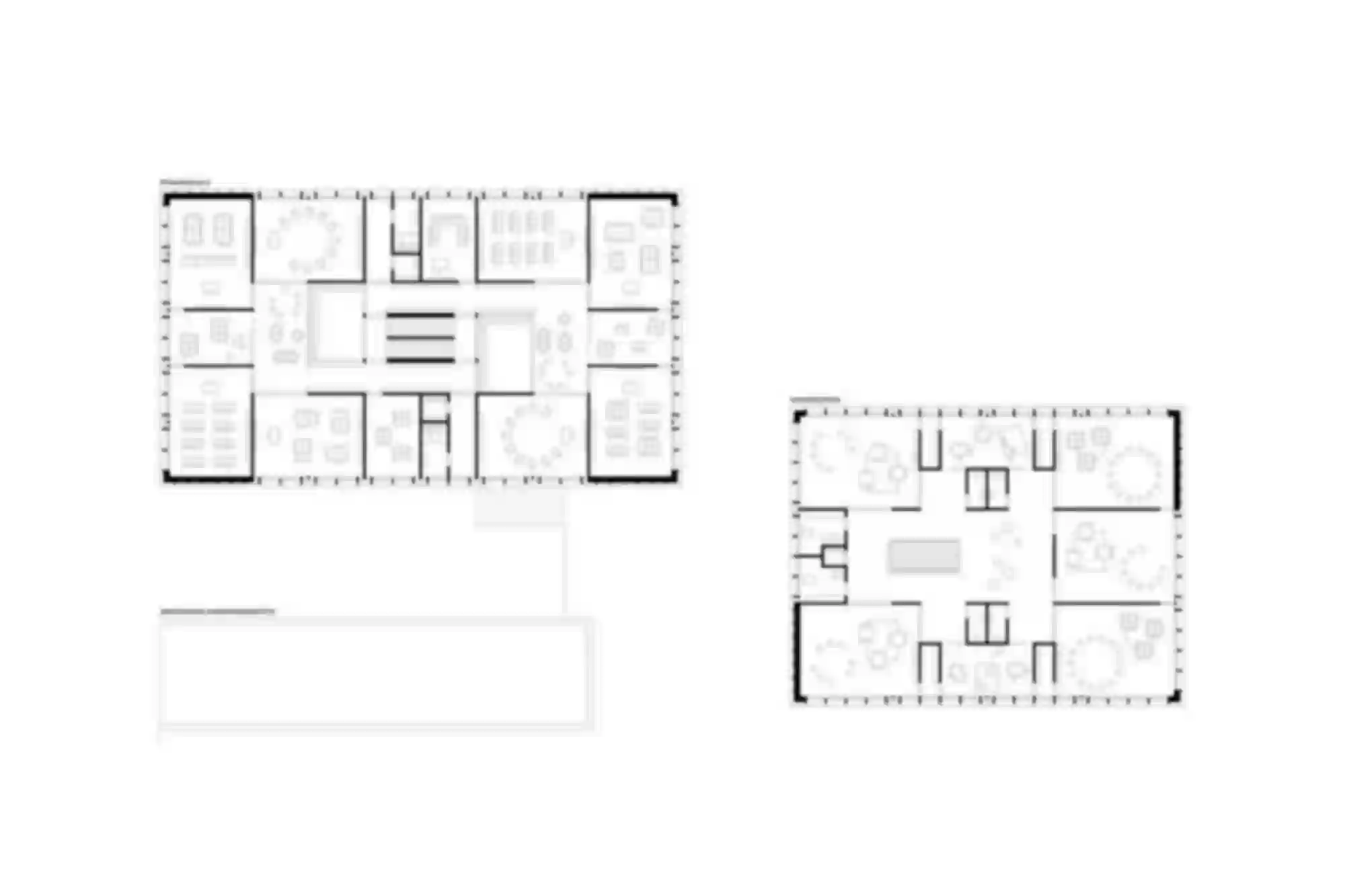
Schulhaus Mitte Brig-Glis

Ort

Brig-Glis

Jahr

2024

Stand

2. Preis

Projekt

Neubau Grundschule und Sporthalle

Auslober

Stadtgemeinde Brig-Glis

Verfasser

Translocal Architecture GmbH

Nächstes Projekt: Quartiersentwicklung Praz-Gérémoz, Penthalaz | CH