Zum Inhaltsbereich springen

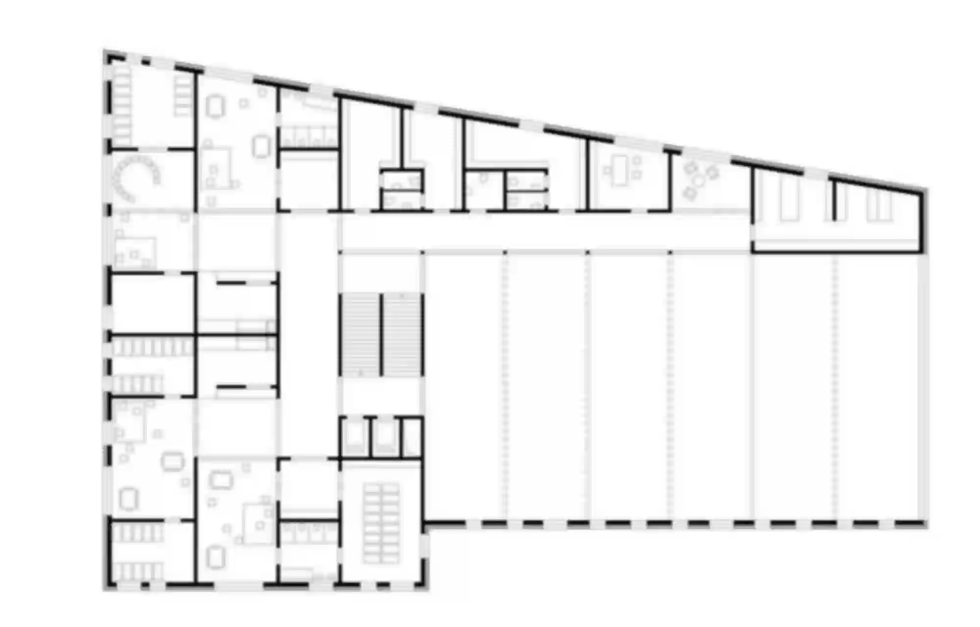
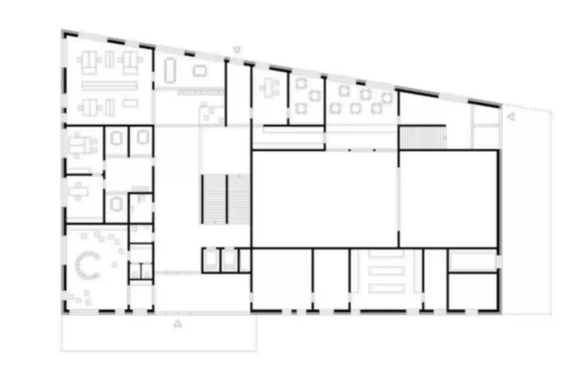
Quartierszentrum La Jonction

Ort

Genève

Jahr

2012

Stand

2. Preis

Projekt

Kindertagesstätte, Turnhalle, Mehrzwecksaal, Betreuungs- und Gruppenräume

Auslober

Ville de Genève, Département des constructions et de l’aménagement

Verfasser

Translocal Architecture GmbH

Nächstes Projekt: Wohnhaus, Sumiswald | CH