Zum Inhaltsbereich springen

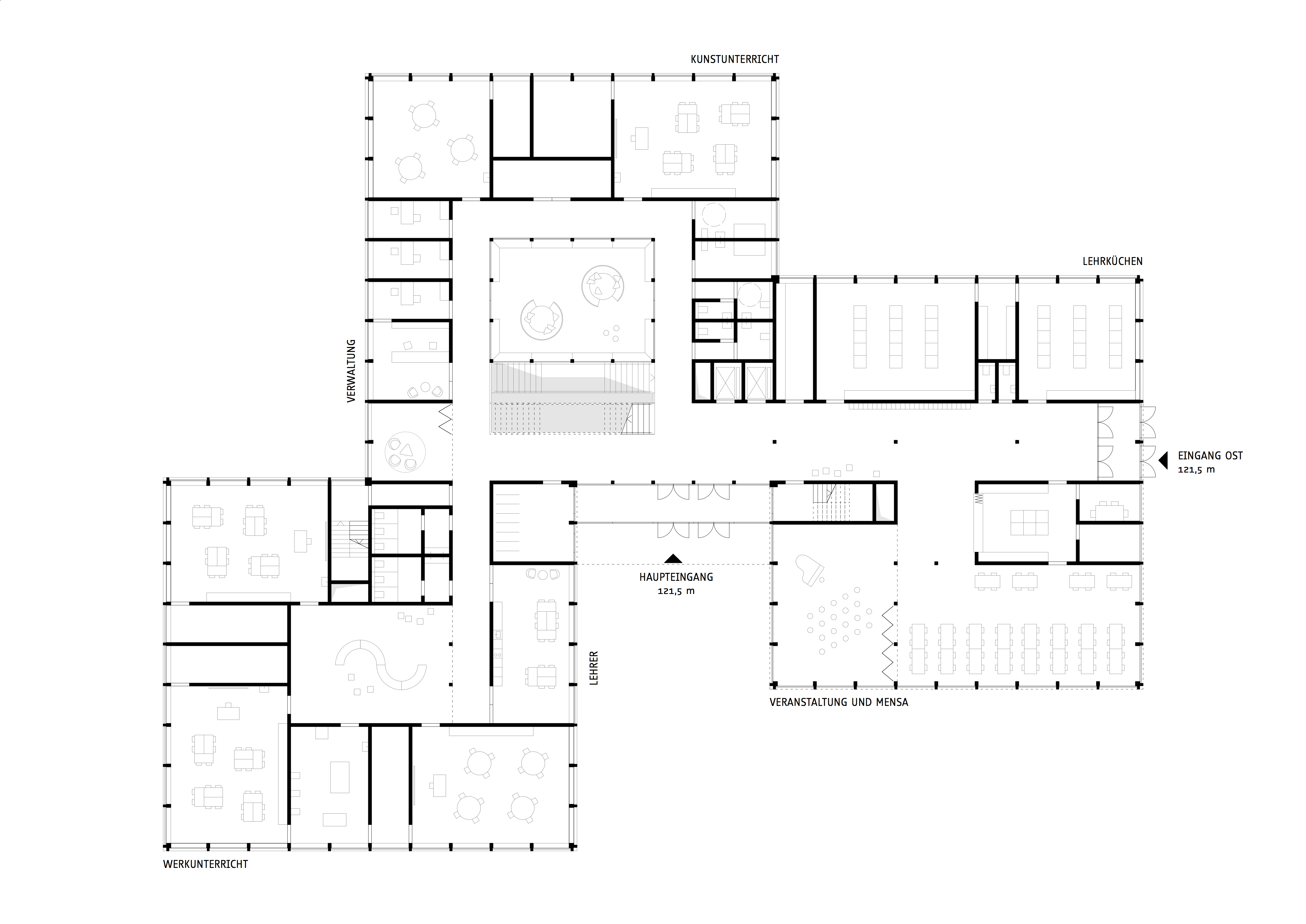
Förderschule Radebeul

Ort

Radebeul

Jahr

2022

Stand

2. Preis

Projekt

Neubau Schulhaus

Auslober

Landratsamt Meissen

Verfasser

Translocal Architecture GmbH
mit RSP Freiraum GmbH

Nächstes Projekt: Altersheim Sorens, Sorens | CH